Section 17.3
Common Powertrain Controller
The Common Powertrain Controller (CPC) has three 18–pin connectors and one 21–pin connector. The following sections contain the connector pin-outs for truck. vocational, transit bus and crane applications.
The CPC is the interface between the MCM and the vehicle/equipment for engine control and manages other vehicle/equipment functions. See Figure "The Common Powertrain Controller" .

Figure 1. The Common Powertrain Controller
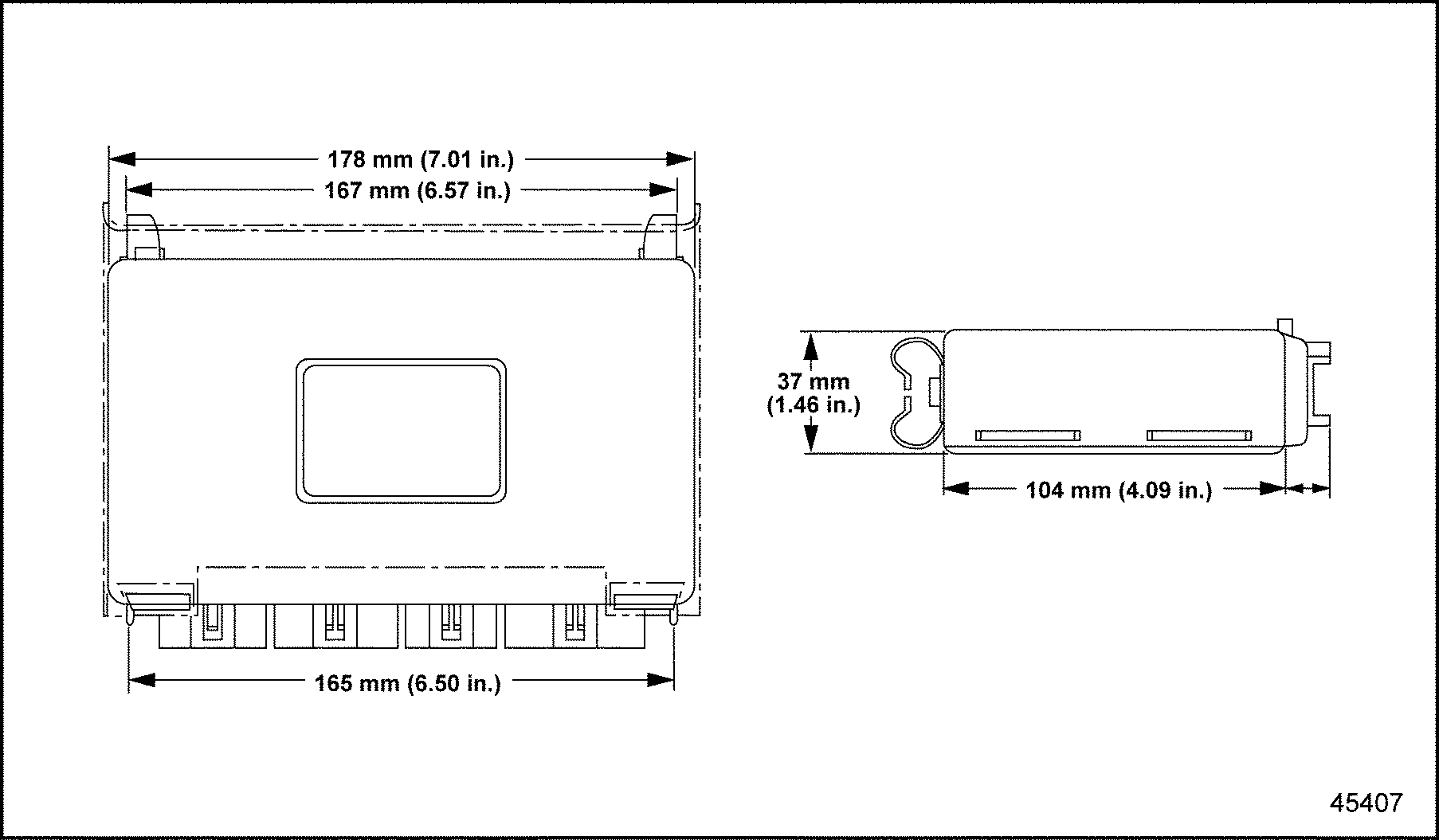
The OEM is responsible for mounting this part in an enclosed, protected environment. The mounting bracket is the responsibility of the OEM. There must be maximum physical separation of the VIH from other vehicle/equipment electrical systems. Other electrical system wires should ideally be at least three feet away from the VIH and should not be parallel to the VIH. This will eliminate coupling electromagnetic energy from other systems into the VIH.See Figure "CPC Dimensions" for the CPC dimensions.

Figure 2. CPC Dimensions
Note: The CPC should be mounted with the connectors pointing down.
The CPC communicates over the J1587 and J1939 Data Links to the vehicle.
Within the CPC, sets of data for specific applications are stored. These include idle speed, maximum running speed, and speed limitation. Customer programmable parameters are also stored here.
The CPC receives data from the operator (accelerator pedal position, switches, various sensors) and other electronic control units (for example, synchronization controllers for more than one genset, air compressor controls).
From this data, instructions are computed for controlling the engine and transmitted to the MCM via the proprietary data link.
Section 17.3.1
Environmental Conditions
Temperature, vibration, and water intrusion must be considered.
Section 17.3.1.1
Temperature
The ambient operating temperature range is –40°F to 185°F (-40°C to 85°C).
Section 17.3.1.2
Water Intrusion
The CPC is not water tight and cannot be subject to water spray. It must be mounted in an enclosed, protected environment.
Section 17.3.2
CPC Vehicle Interface Harness
The OEM supplied Vehicle Interface Harness (VIH) connects the CPC to the MCM and other vehicle systems.
The following criteria are to be used when designing the VIH:
- The four vehicle connectors are designed to accept 18 AWG wires for all circuits.
- The conductor must be annealed copper, not aluminum, and must comply with the industry standard SAE J1128 document.
- Color code the wires as shown in the schematics. If the wires used are the same color, hot stamp the cavity number on the wires.
Note: The Vehicle Speed Sensor (VSS) must be a twisted pair. The twists are a minimum of 12 turns per foot (305 mm) and are required to minimize electromagnetic field coupling.
Note: J1939 cable is required for the J1939 datalink wires. Refer to SAE J1939–11 spec for specific requirements.
The low speed propriety Engine-CAN link between the MCM and the CPC must be a twisted shielded cable with 0.75 mm diameter wire (approximately 20 AWG), bundle shielded with drain wire and 30 twists per meter. The insulation is rated to 105°C. Termination resistors for the Engine-CAN link are located in the CPC and MCM.
Section 17.3.2.1
Frequency Input
The CPC has one frequency input on the VIH that can accept a variable reluctance sensor. A typical frequency input functions is the Vehicle Speed Sensor (VSS). Requirements for a variable reluctance signal interface are listed in Table "Variable Reluctance Signal Interface" .
|
Parameter |
Range |
|
Input Amplitude Range |
V Peak to Peak |
|
Input Frequency Range |
0 to 10,000 Hz |
Section 17.3.3
Power Supply – 12 Volt System
Normal operating voltage on a 12 V system for the CPC and MCM is 11-16 VDC.
NOTICE: |
|
Operating the CPC or MCM over the voltage limits of 16 volts will cause damage to the CPC or MCM. |
Operating the CPC and/or MCM between 8 and 11 volts may result in degraded engine operation. (Transient operation in this range during engine starting is considered normal for 12 volt systems.)
NOTICE: |
|
Reversing polarity will cause damage to the CPC and/or MCM if the Power Harness is not properly fused. |
Note: All output loads, ignition and CPC power must be powered from the same battery voltage source.
Section 17.3.3.1
Average Current Draw
The maximum average current draw is listed in Table "Maximum Average Current Draw" . This information should be used to size the alternator.
|
System |
Maximum Average Current Draw (12 V Nominal Supply) |
||
|
Crank |
Idle |
Full Load/Rated Speed |
|
|
MCM – Engine Loads |
1.0 A avg |
21.0 A avg |
25.0 A avg |
|
CPC – Vehicle Loads* |
18.0 A peak |
55.0 A peak |
55.0 A peak |
* Vehicle loads are controlled by the OEMs who can best determine the total maximum current draw for their installation.
The current draw for a CPC configuration is listed in Table "Current Draw for CPC Configuration" .
|
Configuration |
Condition |
Current |
|
CPC |
Ignition Off |
<1 mA |
|
Ignition On and Engine Stopped |
120 mA |
The current draw for a MCM is listed in Table "Current Draw for MCM Configuration" .
|
Configuration |
Condition |
Current |
|
MCM |
Ignition Off |
<1 mA |
|
Ignition On and Engine Stopped |
400 mA |
Section 17.3.3.2
Battery Isolator
A battery isolator is not required. However, some applications require a battery that is dedicated to the engine and completely isolated from the rest of the vehicle. Commercially available battery isolators can be used.
Section 17.3.3.3
Main Power Shutdown
The main power supply shutdown schematic shows the DDC approved method for main power switch implementation. See Figure "Main Power Supply Shutdown" .

Figure 3. Main Power Supply Shutdown
Note: Switches must remain closed for 30 seconds after ignition is off for the MCM and CPC to write non-volatile data.
Note: It is recommended that both the positive (+) and negative (-) battery leads be disconnected.
Note: Disconnecting positive power is not sufficient to isolate the CPC for welding purposes.
NOTICE: |
|
When welding, the following must be done to avoid damage to the electronic controls or the engine:
|
Note: The alternator should be connected directly to the battery for isolation purposes.
Section 17.3.4
Fuses
A Battery (+) fuse and an ignition circuit fuse must be provided by the vehicle wiring harness. Blade-type automotive fuses are normally utilized; however, manual or automatic reset circuit breakers which meet the following requirements are also acceptable. The fuse voltage rating must be compatible with the CPC – MCM's maximum operating voltage of 16 volts.
|
FIRE |
|
To avoid injury from fire, additional loads should not be placed on existing circuits. Additional loads may blow the fuse (or trip the circuit breaker) and cause the circuit to overheat and burn. |
|
FIRE |
|
To avoid injury from fire, do not replace an existing fuse with a larger amperage fuse. The increased current may overheat the wiring, causing the insulation and surrounding materials to burn. |
The ignition fuse current rating must be sized for the loads utilized in each application; however, a rating of between 5 and 10 amps is usually sufficient.
The Battery (+) fuse current rating must satisfy two criteria:
- Must not open during normal operation
- Must open before the MCM or CPC is damaged during a reverse battery condition
Bussmann ATC-30 and Delphi Packard Electric Systems MaxiFuse 30 amp rated fuses or equivalent will satisfy these requirements. Acceptable blow times versus current and temperature derating characteristics are listed in Table "Fuse Current and Blow Time" and Table "Fuse Temperature and Current" .
|
% of Rated Fuse Current |
Minimum Blow Time |
Maximum Blow Time |
|
100% |
100 hours |
- |
|
135% |
1 minutes |
30 minute |
|
200% |
6 seconds |
40 seconds |
|
Temperature |
% of Rated Fuse Current |
|
-40°C |
110% max |
|
+25°C |
100% |
|
+120°C |
80% min |
Section 17.3.5
Connectors
There are three 18–pin connectors and one 21–pin connector to the CPC. The OEM is responsible for the four connectors at the CPC, the 21–pin connector at the MCM, the 31–pin MCM pigtail connector and the 10–pin DPF connector.
Note: The CPC connectors are not water tight and cannot be subject to water spray.
Section 17.3.5.1
Data Link Connector
The SAE J1708/J1587 nine-pin data link connector is required. DDC recommends that the OEM-supplied Data Link Connector be conveniently positioned in a well protected location facilitating subsequent Detroit Diesel Diagnostic Link 7.0 (DDDL 7.0) usage (i.e., reprogramming, diagnostics, etc.).
Note: REQUIRED: The J1939 data link must be wired to this connector.
The following illustration shows the wiring for the nine-pin connector (see see Figure "Wiring for 9-pin Data Link Connector" ).

Figure 4. Wiring for 9-pin Data Link Connector
The SAE J1587/J1708 Data Link must be twisted pairs. The twists are a minimum of 12 turns per foot (305 mm). The maximum length for the SAE J1587/J1708 Data Link is 130 ft (40 m).
| EPA07 DD15 Troubleshooting Guide - DDC-SVC-MAN-0029 |
| Generated on 10-13-2008 |
Excellent information. I have seen frequent CPC issues in Cascadia DT12. I believe service technician most likely ignore the effect of interference of electromagnetic force and may not keep CPC wiring away from other wiring. I am new to this field but it seems not for very long.