Section 2.20
Electronic Distributor Unit DDEC I
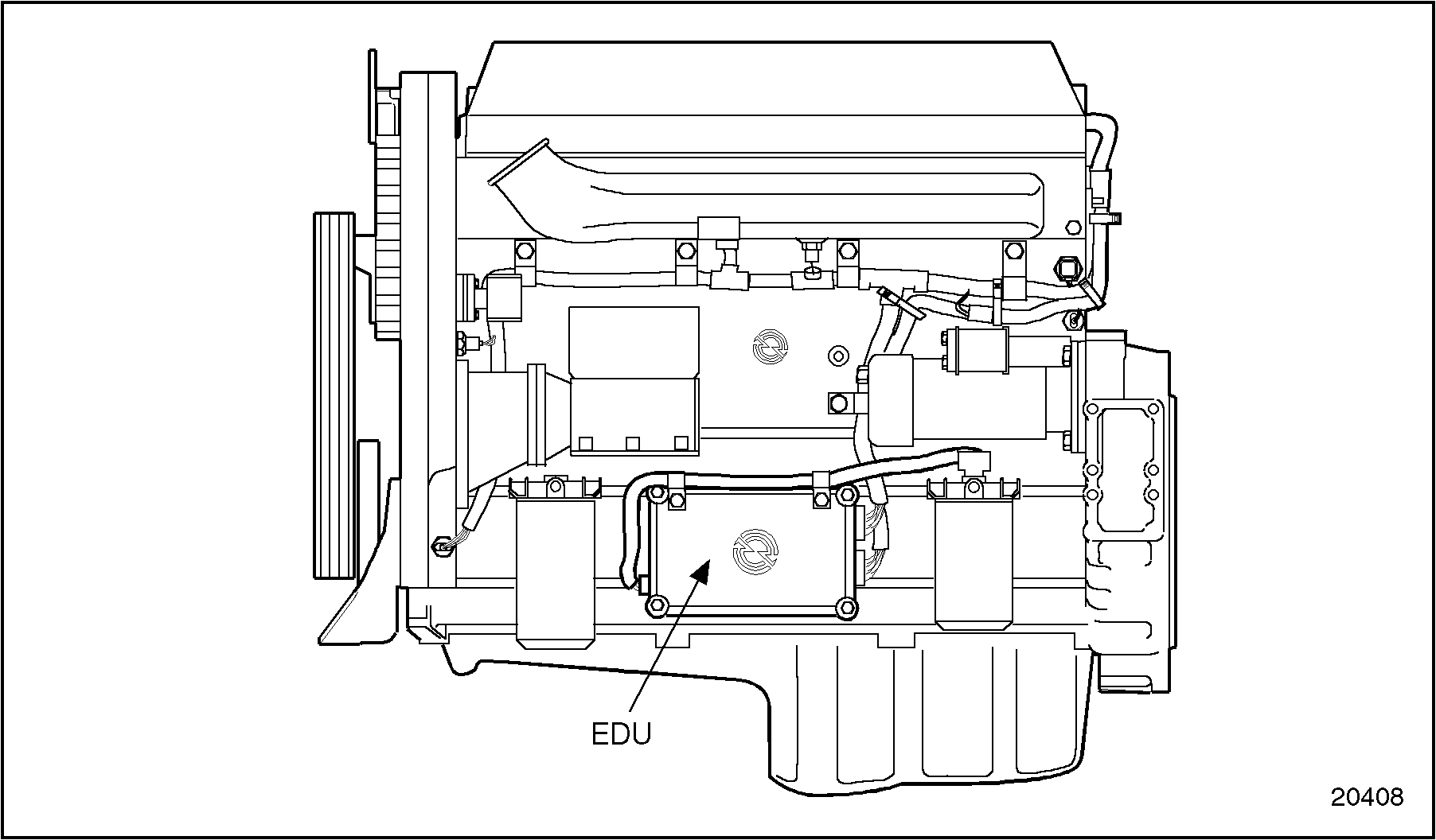
The Electronic Distributor Unit (EDU) is mounted in a die-cast aluminum housing with sealed electrical connectors. For a typical engine location, see Figure "Electronic Distributor Unit and Related Parts" .

Figure 1. Electronic Distributor Unit and Related Parts
Heat generated by the EDU during engine operation is absorbed by a cold plate mounted between the EDU and the engine block. Fuel from the fuel pump circulates through the cold plate and the secondary filter to the engine where it is used by the injectors.
The main function of the EDU is to generate electrical signals to operate the injector solenoids. These electrical signals are controlled by the ECM.
Section 2.20.1
Replacement of the Electronic Distributor Unit
The EDU is a sealed unit that must be replaced.
Section 2.20.2
Removal of Electronic Distributor Unit
Remove the EDU as follows:
- Disconnect the fuel line (at the secondary fuel filter) that runs from the EDU cold plate. Position the line over a suitable container to collect any fuel coming from the system.
- Disconnect the inlet and return lines from the EDU cold plate.
- Loosen, but do not remove, the two wire harness connector hold-down screws. Pull gently on the connectors to disengage them from the EDU sockets.
- Remove the through-bolts and washers holding the EDU to the engine.
- Remove the EDU and cold plate from the engine.
- Remove the screws securing the cold plate to the EDU. Remove the cold plate from the EDU.
Section 2.20.3
Installation of Electronic Distributor Unit
Install the EDU as follows:
- Install the screws securing the cold plate to the EDU. Use Loctite® 262, or equivalent, on the cold plate-to-EDU screws. Torque to 9.5-12 N·m (84-106 lb·in.).
- Install the cold plate to the EDU.
- Install the EDU and cold plate to the engine.
- Install the through-bolts and washers holding the EDU to the engine. Torque the EDU-to-engine bolts to 30-38 N·m (22-28 lb·ft). Torque the EDU connector hold down screws to 2.4-3.0 N·m (21-26 lb·in.).
Note: Torque the harness connector to EDU screws to 2.4-3.0 N·m (21-26 lb·in.).
- Connect the inlet and return lines to the EDU cold plate.
- Connect the fuel line (at the secondary fuel filter) that runs from the EDU cold plate.
- Turn the ignition to the ON position. Observe the DDR for any diagnostic code(s). If any code(s) other than code 25 is logged, refer to the Detroit Diesel Single ECM Troubleshooting Manual
(6SE497).

PERSONAL INJURY
To avoid injury before starting and running the engine, ensure the vehicle is parked on a level surface, parking brake is set, and the wheels are blocked.

PERSONAL INJURY
Diesel engine exhaust and some of its constituents are known to the State of California to cause cancer, birth defects, and other reproductive harm.
- Always start and operate an engine in a well ventilated area.
- If operating an engine in an enclosed area, vent the exhaust to the outside.
- Do not modify or tamper with the exhaust system or emission control system.
- Start the engine and check for fuel leaks. Shut down upon completion of test.
| Series 60 Service Manual - 6SE483 |
| Generated on 10-13-2008 |