Section 3.1
Overview of Lubrication System
The lubrication system is pressure regulated, cooled and full-flow filtered. In addition to providing engine lubrication, pressurized lube oil is used to control fuel delivery in the hydraulically actuated electronically controlled unit injectors. External oil piping is kept to a minimum to avoid oil leakage.
Section 3.1.1
Location
The right side of the engine has an oil cooler, replaceable full-flow oil filter, turbocharger oil line, and road draft tube. The left side of the engine has the oil filler tube, oil level gage, high pressure pump and oil supply manifold.
Section 3.1.2
Oil Flow
Lube oil is drawn from the oil sump through the pick-up screen and tube into the oil pump. The oil pump is of the gerotor type with the inner rotor portion driven directly by the crankshaft. The pump housing is bolted to the front cover. The pump inlet and outlet passages are through ports in the pump plate and front cover ports. Leaving the oil pump, the unfiltered oil travels (under pressure) back through the front cover assembly, passing the high pressure oil relief valve and into the crankcase unfiltered oil galley. The high oil pressure relief valve controls unfiltered oil pressure at 552 kPa (80 psi). When oil pressure exceeds 552 kPa (80 psi), the oil pressure relief valve opens and excess oil is dumped back to the oil sump.
Note: The high pressure oil relief controls unfiltered oil pressure at 552 kPa (80 psi) maximum.
There are two oil galleries in the crankcase. The unfiltered oil travels down the unfiltered oil galley on the lower right hand side of the crankcase and the filtered oil galley runs above it. There are two exit ports in the unfiltered oil galley. One exits to the front header of the oil cooler and one exits to the rear header of the oil cooler. The oil cooler thermostat, located in the rear header, opens or closes by sensing oil temperature in the unfiltered galley. Depending upon the position of the oil thermostat, hot oil flows through the oil cooler core into the rear header and cold unfiltered oil bypasses the oil cooler core and goes directly to the oil filter.
Oil directed from the unfiltered galley to the filter, enters from the outside of the element and exits from the center. The oil filter bypass valve is located within the filter can and operates at a pressure differential of 124-138 kPa (18-20 psi). The oil filter element bypass is effected from within the filter can. Clean engine oil flows out of the filter and goes back into the oil cooler header, then out the header and into the crankcase clean oil galley. The clean oil enters the crankcase, passes the oil pressure regulator valve and is directed through various ports of the crankcase. Excess oil is dumped back into the crankcase by the regulator valve.
Note: The oil pressure regulator valve controls filtered oil pressure at 345 kPa (50 psi).
Connecting rod bearings are individually fed through drilled passages in the crankshaft from main to rod journals. The camshaft journals are through passages drilled vertically through the main bearing webs.
Oil is fed from the main bearing webs, through angled drillings, providing pressurized lube oil to the piston cooling jets. The valve lever rocker arms are lubricated through an anulus on the inside of the rear camshaft bushing bore of the crankcase. Oil then travels up through the vertical galley in the rear of the engine, through the banana slot in the head gasket and up the cylinder head bolt bore into the rocker arm shaft. Oil continues flowing through drillings located in the shaft of each rocker arm. Oil drains back to the pump through push tube openings in the cylinder head. See Figure "Oil Flow" .

|
1. Main Bearing |
9. Assembly |
|
2. Pick-up Tube |
10. Cam Bushing |
|
3. Pressure Regulator |
11 .Air Compressor |
|
4. Filter |
12. Reservoir |
|
5. Bypass Valve |
13. Pressure Relief Valve |
|
6. Oil Temperature Control Valve |
14. Bypass Gallery |
|
7. Turbocharger |
15. Piston Cooling Jets |
|
8. Main Oil Gallery |
16. Oil Pump |
Figure 1. Oil Flow
Oil from the front of the main galley is routed through a cast-in passage located in the front of the crankcase, to the passage in the top of the high pressure pump reservoir. Oil then flows to the oil reservoir cast into the front cover, located in front of the high pressure pump. Oil, as needed, is then drawn by the high pressure supply manifold via an external hose from the high pressure pump. The high pressure oil reaches the fuel injectors through drillings in the supply manifold which intersect with the injector bores.
The turbocharger receives filtered oil through an external tube connected at the rear oil cooler header. The air compressor (if equipped) also receives oil through external lines that are connected on the left side of the crankcase main filtered oil gallery. This fitting is supplied with oil directly from the main gallery. The front gear train is splash lubricated by oil draining from the high pressure reservoir and air compressor (if equipped) and from a small bleed slot at the top of the high pressure oil pump reservoir on the outer front cover. See Figure "Oil Cooler Header Oil Flow Schematic" .

|
1. Oil Filter |
2. Thermostat |
Figure 2. Oil Cooler Header Oil Flow Schematic
Section 3.1.3
Oil Pressure Regulator Valve
The unique design of the lubricating oil pressure relief valve, 552 kPa (80 psi), located in the front cover and the oil pressure regulating valve, 345 kPa (50 psi). located by the rear oil cooler header, extend the life of the engine because it controls the volume and pressure of oil supplied to the engine.
The volume of oil supplied by the pump is always in excess of what is needed to lubricate the engine. The oil pressure relief valve is located in the front cover and is used to protect the oil cooler and oil filter from extremely high pressures encountered during cold starts in cold weather.
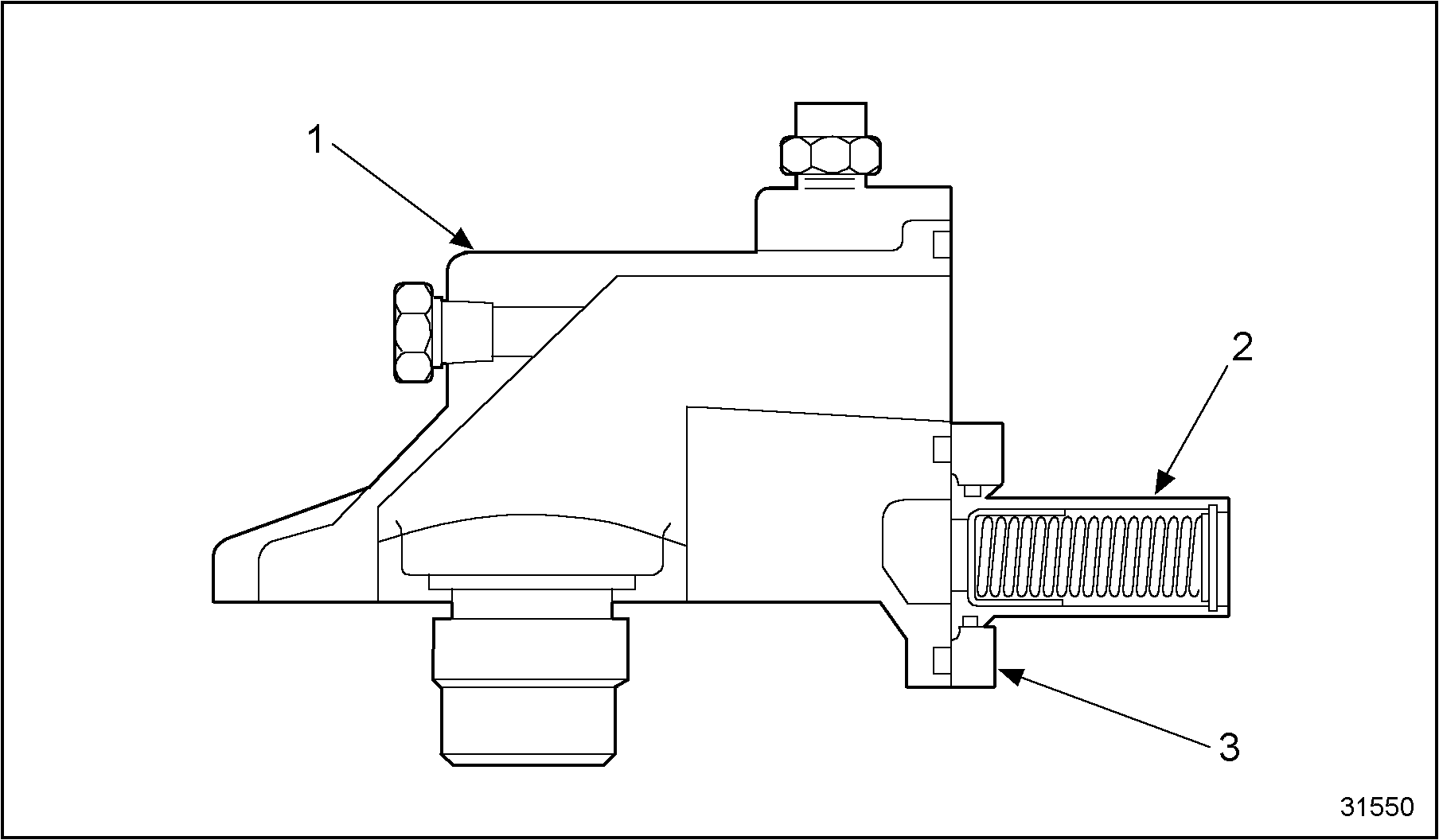
If oil pressure exceeds 552 kPa (80 psi) on the valve face, it moves the valve body inward allowing oil to travel through the valve and back to the oil pan, thus relieving pressure in the lubrication system. See Figure "Oil Pressure Relief Valve" .

|
1. Rear Half of Front Cover |
3. Crankcase |
|
2. Oil Pressure Relief Valve |
|
Figure 3. Oil Pressure Relief Valve
The oil pressure regulator valve is located on the right side of the block, between oil filter header and block. When all points of lubrication within the engine are satisfied, restriction to flow causes pressure to build on the case of the valve causing it to move inward. This action allows excess oil to go directly back to the oil pan, through the ports uncovered by the movement of the regulator valve body. See Figure "Oil Pressure Regulator Valve" .

|
1. Oil Cooler Rear Header |
3. Crankcase |
|
2. Oil Pressure Regulator Valve |
|
Figure 4. Oil Pressure Regulator Valve
| Series 40E Service Manual - 6SE410 |
| Generated on 10-13-2008 |