Follow these procedures to diagnose and correct the Electronic Foot Pedal Assembly and Idle Validation Sensor.
Section 23.1.1
Signal Functions
The accelerator position sensor is a potentiometer type sensor that, when supplied with a 5 volt reference signal from the ECM provides a linear analog voltage signal that indicates the driver’s demand for power. See Figure
“EFPA/IVS Function Diagram”
.

Figure 1. EFPA/IVS Function Diagram
The Idle Validation Switch (IVS) is a 0/12 volt switch that provides the ECM with a redundant signal to verify when the pedal is in the idle position.
Fuel Quantity and Timing Control — The accelerator position sensor signal is used in calculating desired fuel quantity and injector timing.
Injection Control Pressure — Accelerator pedal position is one of the controlling variables in the calculation of desired injection control pressure.
Section 23.1.2
Fault Detection Management
Any detected malfunction of the accelerator position sensor or IVS sensor circuit will illuminate the WARN ENGINE lamp.
An accelerator position sensor signal that is detected out of range high or low by the ECM will cause the engine to ignore the signal and will only allow the engine to operate at low idle.
If a disagreement in the state of the IVS and accelerator position sensors is detected by the ECM and the ECM determines that it is an IVS fault, the ECM will only allow a maximum of 50% of the accelerator position sensor to be commanded.
If a disagreement in the state of IVS and the accelerator position sensor is detected by the ECM and the ECM cannot discern if it is an accelerator position sensor or IVS fault, or if it is an EFPA fault, the engine will be allowed to operate at low idle only.
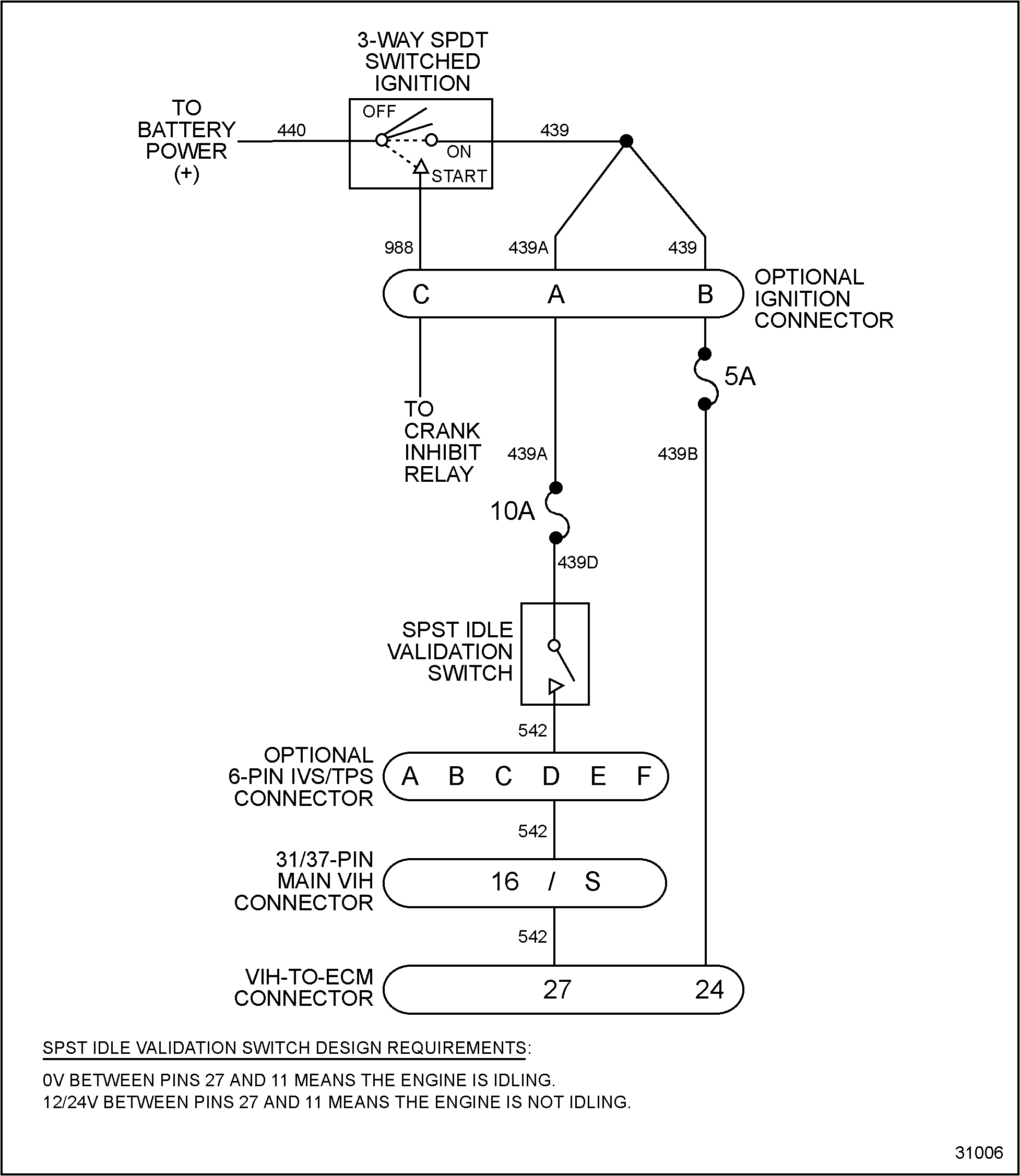
For recommended wiring for the EFPA/Hand Throttle to control vehicle speed, see Figure
“Recommended Wiring for the Electronic Foot Pedal Assembly/Hand Throttle”
. For recommended wiring for the Idle Validation Switch, see Figure
“Recommended Wiring for Idle Validation Switch”
.

Figure 2. Recommended Wiring for the Electronic Foot Pedal Assembly/Hand Throttle

Figure 3. Recommended Wiring for Idle Validation Switch
Connector voltage checks are listed in Table
“Connector Voltage Checks”
. These checks are performed with the sensor connector disconnected and the ignition key ON.
| Test Points | Specifications | Comments |
| A to Grd | 0 − 0.25 volts | If greater than 0.25 volts, signal ground wire is shorted to VREF or battery. |
| B to Grd | 0 volts | Signal ground no voltage expected. |
| C to Grd | 5 ± 0.5 volts | VREF check key on; if VREF not present, check open/short to ground; see VREF circuit. |
| D to Grd | 0 − 0.25 volts | If greater than 0.25 volts, signal ground wire is shorted to VREF or battery. |
| F to Grd | 12 ± 1.5 volts | < 10.5 v check for poor connection; 0 v check for open/short to ground circuit or blown fuse. |
Connector checks to chassis ground are listed in Table
“Connector Checks to Chassis Ground”
. These checks are performed with the sensor connector disconnected, the positive battery cable disconnected, and the ignition key OFF.
| Test Points | Specifications | Comments |
| A to Grd | > 1,000 Ω | Resistance less than 1,000 Ω indicates a short to ground. |
| B to Grd | < 5 Ω | Resistance to chassis ground, check with key off, > 5 Ω, harness is open. |
| C to Grd | > 500 Ω | Resistance less than 500 Ω indicates a short to ground. |
| D to Grd | > 1,000 Ω | Resistance less than 1,000 Ω indicates a short to ground. |
| F to Grd | > 1,000 Ω | Resistance less than 1,000 Ω indicates a short to ground, with Fuse F17 removed. |
Harness resistance checks are listed in Table
“Harness Resistance Checks”
. These checks are performed with the breakout box installed on the chassis harness only.
| Test Points | Specifications | Comments |
| #8 to A | < 5 Ω | Resistance from 60-pin connector to harness connector – accelerator position sensor signal |
| #11 to B | < 5 Ω | Resistance from 60-pin connector to harness connector – signal ground |
| #3 to C | < 5 Ω | Resistance from 60-pin connector to harness connector – VREF |
| #27 to D | < 5 Ω | Resistance from 60-pin connector to harness connector – 60-pin connector to harness connector – IVS signal |
| 4390 to G | < 5 Ω | Resistance from V IGN power to harness connector |
Operational voltage checks are listed in Table
“”
. These checks are performed with the breakout box and the EST installed key ON.
| | EFPA Test Points
(+) #8 to (-) #11 |
IVS Test Points
(+) #27 to (-) #11 |
Operational Voltage Checks | ||
| Position | Voltage | % EFPA | Voltage | % EFPA | Comments |
| Low Idle | 0.25 to 0.8V | 0 % | 0 Volts | 0 % | IVS voltage should toggle just off low idle position |
| High Idle | 3 to 4.4V | 98 – 102% | 12 ± 1.5 volts | 98 – 102% | If EFPA measures only 50% and voltage signal in spec, IVS fault detected |
Fault code descriptions are listed in Table
“”
. If Fault Codes 131, 132, 133 or 134 are set, the engine operation will default to run at low idle speed only.
| Fault Code | Fault Code Descriptions |
| 131 | EFPA signal was less than 0.148 volts for more than 0.5 seconds* |
| 132 | EFPA signal was greater than 4.55 volts for more than 0.5 seconds* |
| 133 | EFPA signal in-range fault* |
| 134 | EFPA and IVS disagree* |
| 135 | Idle validation switch circuit fault – 50% accelerator position sensor only |
* If a fault code is set, engine operation will default to run at low idle speed only.
Section 23.1.3
EFPA/IVS Extended System Description
Detroit Diesel electronic engines use an electronic foot pedal assembly that includes an accelerator position sensor and IVS. These two functions are integrated into one component mounted on the pedal. The accelerator pedal assembly is serviceable to the extent that the position sensor/IVS switch can be replaced without replacing the complete assembly.
The engine ECM determines the position of the accelerator pedal by processing the input signals from the accelerator position sensor and IVS.
Section 23.1.4
Accelerator Position Sensor
The ECM sends a regulated 5 volt signal through the ECM chassis connector (black) terminal three to the accelerator position sensor connector terminal C. The position sensor then returns a variable voltage signal (depending on the pedal position) from the accelerator position sensor connector terminal A to the ECM at terminal 8. The position sensor is grounded from the connector terminal B to the ECM signal ground terminal 11.
Section 23.1.5
Auto-Calibration
The ECM learns the lowest and highest pedal positions by reading and storing the minimum and maximum voltage levels from the accelerator position sensor. In this manner the ECM auto-calibrates the system to allow maximum pedal sensitivity. The ECM auto-calibrates as the key is ON, but when the key is turned on again, this process starts over. When the pedal is disconnected (or new one installed), the pedal does not need to be calibrated as the calibration happens when the key is turned on.
Section 23.1.6
Idle Validation Switch
The ECM expects to receive one of two signals through the ECM chassis connector (black) terminal 27 from the accelerator position sensor/IVS connector terminal D:
- 0 volts when the pedal is at the idle position
- 12 volts when the pedal is depressed
The IVS receives 12 volt ignition voltage from the switched ignition fuse in the fuse box. When the pedal is not in the idle position (throttle applied), the IVS supplies a 12 volt signal to the ECM.
The ECM compares the inputs it receives at terminals 8 and 27 from the EFPA to verify the pedal is in the idle position. If the signal at terminal 8 indicates the throttle is being applied, then the ECM expects to see 12 volts at IVS terminal 27. If the signal at terminal 8 indicates throttle is not applied, then the ECM expects to see 0 volts at the IVS terminal 27. The timing process is critical between the accelerator position sensor and the IVS sensor. For this reason, it is very difficult to determine if the EFPA is working properly using a volt-ohmmeter.
Section 23.1.7
ECM Diagnostics
When the key is ON, the ECM continuously monitors the accelerator position sensor and IVS circuits for expected voltages. It also compares the accelerator position sensor and IVS signals for conflict. If the signals are not what the ECM expects to see, Fault Codes will be set.
Section 23.1.8
Flash Codes
The following Flash Codes are possible with the EFPA/IVS faults.
Section 23.1.8.1
Flash Code 131
ATA Code PID 91 FMI 4 —
ECM: Accelerator Position Sensor out of range LOW
The ORL (out of range low) Flash Code 131 is set if the ECM detects a voltage lower than 0.146 volts at terminal 8. Possible causes include a short to ground or an open in circuit 417. This code is displayed by either the EST or the Engine Warning Light when used to flash codes.
When Flash Code 131 is active, the ECM restricts the engine speed to idle and turns the Engine Warning Light ON. If the condition causing code 131 is intermittent, and the condition is no longer present, the code will become inactive and normal engine operation will resume.
Section 23.1.8.2
Flash Code 132
ATA Code PID 91 FMI 3 —
ECM: Accelerator Position Sensor out of range HIGH
The ORH (out of range high) Flash Code 132 is set if the ECM detects a voltage greater than 4.55 volts at terminal 8. Possible cause is a short to VREF or 12 volts in circuit 417. This code is displayed by either the EST or the Engine Warning Light when used to flash codes.
When Flash Code 132 is active, the ECM restricts engine speed to idle and turns the Engine Warning Light ON. If the condition causing code 132 is intermittent and the condition is no longer present, the code will become inactive and normal engine operation will resume.
Section 23.1.8.3
Flash Code 133, 134 and 135
Accelerator Position Sensor in range faults
The ECM checks the voltage output of the accelerator position sensor by comparing that signal with the IVS signal. These two signals can disagree in two cases:
- The accelerator position sensor signal indicates the pedal is pressed down to accelerate, but the IVS signal indicates idle position.
- The accelerator position sensor signal indicates the pedal has been released to allow the engine to return to idle, but the IVS signal indicates off-idle position of the pedal.
If the ECM detects either of the above conditions, the ECM attempts to isolate the source of conflict and set the appropriate fault code.
Section 23.1.8.4
Flash Code 133
ATA Code PID 91 FMI 2 —
ECM: Accelerator position sensor in range fault
If the IVS signal is changing and the accelerator position sensor signal is constant, the ECM assumes the accelerator position sensor is the conflict source and sets Flash Code 133. Engine r/min is restricted to idle and the Engine Warning Light is turned ON.
Section 23.1.8.5
Flash Code 134
ATA Code PID 91 FMI 2 —
ECM: Accelerator position sensor and IVS disagree
If neither the accelerator position sensor or the IVS is changing, or both are changing, or the ECM cannot determine the faulty code in specified time, then Flash Code 134 is set; the engine r/min is restricted to idle and the Engine Warning Light is turned ON.
Section 23.1.8.6
Flash Code 135
ATA Code SID 230 FMI 11 —
ECM: IVS circuit fault
If the accelerator position sensor is changing and the IVS is constant, the ECM assumes the IVS is the conflict source and sets the Flash Code 135. In this case, the ECM limits the APS signal to a lower value that provides less than full r/min, but does not limit the engine r/min to idle. The Engine Warning Light is not turned ON.
Note that Flash Codes 133, 134 and 135 are caused by an intermittent condition. The codes remain active until the vehicle has been shut down and restarted. They do not recover without cycling the key switch.
| Series 40E Troubleshooting Manual – 6SE241 |
| Generated on 10-13-2008 |