Section 81.5
Troubleshoot Exhaust Gas Temperature
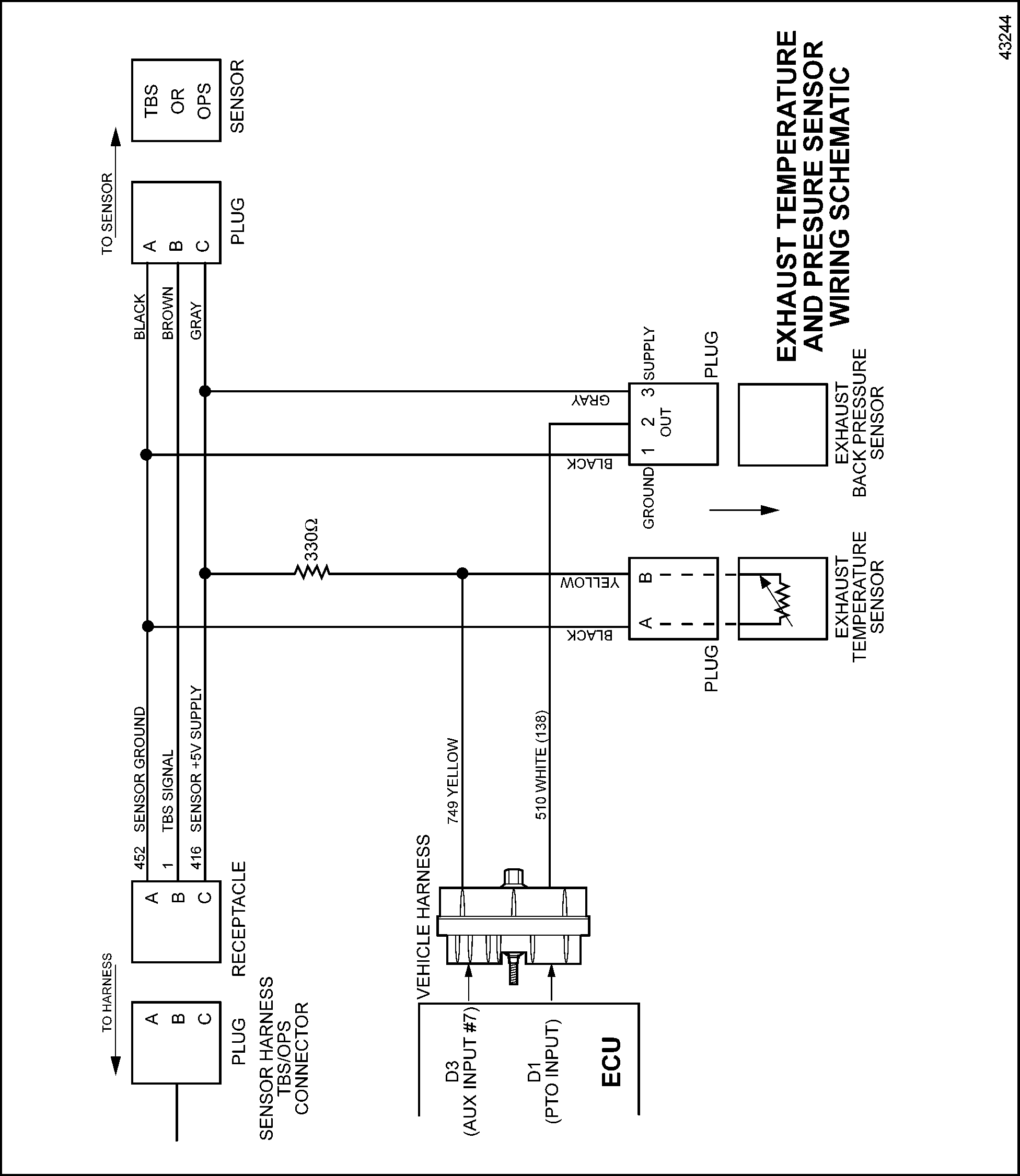
The following procedures troubleshoot the Exhaust Gas Temperature. For exhaust temperature and pressure sensor wiring schematic, see Figure "Exhaust Temperature and Pressure Sensor Wiring Schematic" .

Figure 1. Exhaust Temperature and Pressure Sensor Wiring Schematic
Section 81.5.1
Check for Open
Typically, the exhaust gas temperature circuit failed high is caused by an open signal or short to battery +. Perform the following steps to troubleshoot code p 173/3:
- Disconnect the ETS connector.
- Install a jumper wire between the two pins at the ETS.
- Unplug both 30–pin connectors at the ECM.
- Measure resistance between D3 of the VIH connector and W1 of the ESH connector; see Figure
"Exhaust Temperature and Pressure Sensor Wiring Schematic"
.
- If resistance measures < 5 Ω, refer to "81.5.2 Check for Short" .
- If resistance is > 5 Ω, either the circuit #416 is opened, or #749 is opened. Repair the open or replace the wire and test.
Section 81.5.2
Check for Short
Perform the following steps to check for a short:
- Remove the jumper.
- Measure resistance again between D3 and W1; see Figure
"Exhaust Temperature and Pressure Sensor Wiring Schematic"
.
- If the reading is > 400 Ω, the resistor between circuit #416 and #749 has failed. Replace the resistor or replace the harness.
- If the reading is < 400 Ω, replace the ETS, and refer to "81.5.3 Test" .
Section 81.5.3
Test
Perform the following steps to test the repair:
- Connect all removed connectors.
- Start and run the engine.
- Perform road test.
- Plug in DDR and read active codes.
- If no codes display, repairs are complete.
- If code 81 displays, review the procedure for checking exhaust gas temperature circuit failed high; refer to "81.5.1 Check for Open" . If this is the second time through the procedure, call DDC Technical Service, or try a test ECM.
| DDEC III/IV Single ECM Troubleshooting Guide - 6SE497 |
| Generated on 10-13-2008 |